Bakić & Kulstrunk Architekten
Bauten
Projekte
Team
Kontakt
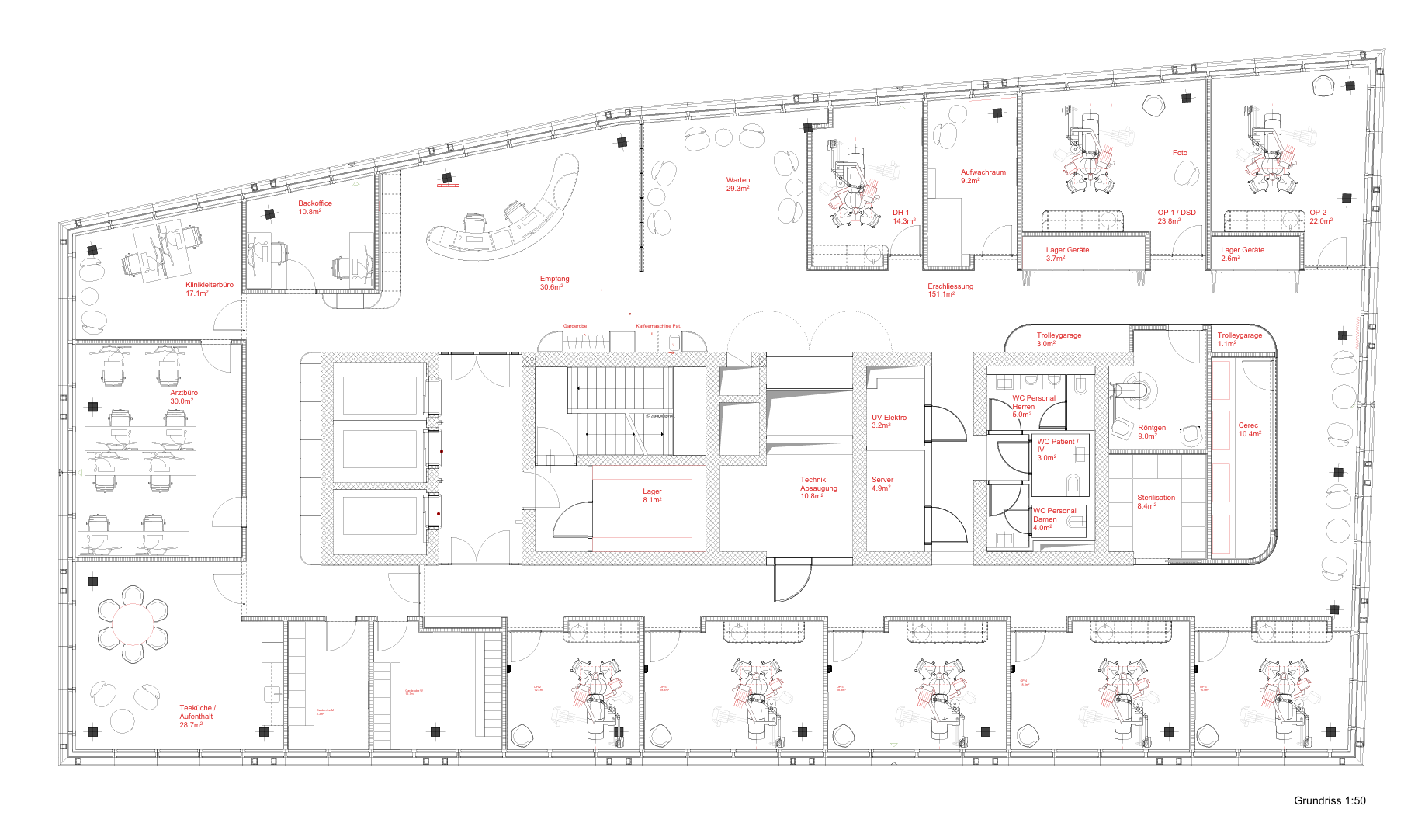
Citydental Oerlikon
Zürich, 2025